Процесс подключения

Провод должен быть трехжильным, изолированным, медным. Одна из жил как раз и нужна для заземления. Если говорить о его параметрах более конкретно, то эту информацию вы найдете в инструкции к прибору. Так, сечение провода непосредственно зависит от мощности бойлера, обычно этот показатель не меньше 1,5 мм² (для баков мощностью до 1,5 кВт).
Отметим, что для подключения бойлера идеально подходят трехжильные кабели ВВГ или NYM. Их характеристики должны соответствовать мощности бойлера.
Длину провода нужно рассчитать на месте, в зависимости от локации, где вы планируете монтировать бак. Не забудьте добавить 1 метр на непредвиденные обстоятельства.
Совет: Если вы не хотите тратить время на расчет параметров сечения, можно исходить из простого правила: для нагревательного прибора мощностью до 4 кВт вполне достаточно диаметра провода от 1,7 до 2 мм.
Важно: вне зависимости от того, укомплектован ли ваш бойлер УЗО (устройством защитного отключения) перед сетевой вилкой, при подключении этого прибора необходимо позаботиться об установке дифавтомата. Его выбирают по тем же параметрам, что и розетку. Более подробно о том, как сделать выбор между этими приборами, вы узнаете из видео:
Более подробно о том, как сделать выбор между этими приборами, вы узнаете из видео:
READ Мопед альфа как подключить стартер
Важно: с учетом того, что вам придется работать с проводкой, позаботьтесь о том, чтобы все инструменты были оснащены изолирующими рукоятками
Рекомендуем прочитать:

Пошаговый алгоритм
Помимо текста с указаниями, как производить монтаж электроприбора, в инструкции вы найдете картинки и схемы устройства самого бойлера и его подключения как к электросети, так и водопроводу. О том, что бойлеры бывают и со шнуром, и без него, вы уже знаете
Обратите внимание, что комплектация бака для воды может отличаться еще по одному параметру — наличии или отсутствии УЗО
Следующий шаг — это наметить место, куда вы установите розетку под бойлер. Опытные мастера рекомендуют расположить ее в коридоре. Так будет правильно с точки зрения техники безопасности. С учетом того, что бойлеры обычно монтируют в помещениях с повышенной влажностью (в ванной, на кухне либо в туалете) автомат советуют размещать в защитном корпусе на стене, если для него нет места в щитке.
В идеале, для водонагревателя необходимо проложить отдельную силовую линию от электросчетчика, так как потребление электроэнергии бойлером довольно высокое — не менее 2 кВт. В крайнем случае, бак для нагрева воды можно подсоединить к разводной коробке, позаботившись о монтаже автомата на данном отрезке провода.
Поговорим о заземлении — этот важный нюанс установки бойлера не рекомендуется игнорировать
Важно понять, куда именно будет идти заземляющий провод. Если ваш щиток оборудован заземляющей шиной, к которой и пойдет одна из жил кабеля, то с этим вообще не будет проблем
Как подключить бойлер через УЗО
В таких случаях специалисты рекомендуют защитить линию питания бойлера с помощью автомата или УЗО (устройства защитного отключения). Оно реагирует даже на самую слабую утечку тока в линии и отключает прибор из сети при возникновении угрозы выхода из строя. Об устройстве УЗО более подробно вы сможете узнать из этого видео.
Предположим, что в вашем доме есть третья жила, выполняющая функцию заземления. Тогда вам не о чем беспокоиться. В вилке бойлера предусмотрена клемма для заземляющей жилы. Устанавливая розетку под водонагреватель либо подключая последний непосредственно к автомату, вы используете отдельную жилу в желто-зеленой изоляции. Ее подсоединяют к заземляющему контакту бойлера.
Рекомендуем прочитать:

Техника безопасности и полезные советы
Обратите внимание, что, если в вашем жилище сделана внутренняя проводка, то электролинию для бойлера необходимо прокладывать внутри стены. Ради этого придется повредить отделку. Есть выход из положения: пустить наружный провод вдоль плинтусов или под потолком
Такой метод увеличит расход проводов, однако он намного проще и быстрее. Впоследствии, когда вы созреете до полноценного ремонта, такую проводку можно будет легко и без лишних расходов «зашить» в стену
Есть выход из положения: пустить наружный провод вдоль плинтусов или под потолком. Такой метод увеличит расход проводов, однако он намного проще и быстрее. Впоследствии, когда вы созреете до полноценного ремонта, такую проводку можно будет легко и без лишних расходов «зашить» в стену.

Надеемся, что сегодняшние рекомендации помогут вам самостоятельно произвести безопасное и качественное подключение бойлера к электросети. Как пользоваться этим полезным и нужным бытовым прибором, получая воду нужной вам температуры, вы узнаете из инструкции по эксплуатации.
Источник
Пункт 1 — установка бойлера
Перед тем, как давать советы об установке, определимся — где удачнее установить бойлер. Стандартные варианты: над ванной или унитазом, просто на стене ванной, а также кухня. Но и последний вариант не всегда подходит, там и так предостаточно других бытовых помощников человека. Поэтому остановимся на двух предпоследних вариантах.
При установке, не забудьте, что от формы водонагревателя (тонкая, цилиндрическая, прямоугольная) зависит и место крепления.
Многие интересуются, можно ли вешать бойлер над ванной. Такой вариант приемлем и даже популярен. Не то чтобы это очень удобно: принимать душ не так комфортно, да и на технику постоянно летят брызги. Но в случае, если бойлер начнет протекать, то затопление соседей не грозит — вся вода утечет в ванную. Над унитазом устанавливать даже как-то страшно. Не самый лучший вариант сидеть под такой немаленькой емкостью.

Вариант с нишей решил бы многие проблемы. Так на порядок безопаснее; техника укрыта и освобождается больше места. Конечно, если условия позволяют проделать нишу или таковая уже предусмотрена.
Если предпочли справляться своими силами, то не игнорируйте элементарные правила безопасности. При самостоятельной установке бойлера вырубите электричество и перекройте в помещении подачу воды.
Не стоит отходить от техописания во время всего процесса. Некоторые уверены, что можно вертикальный бойлер повесить горизонтально. Устанавливать водонагреватель нужно строго по инструкции завода-производителя. Не спорим, есть варианты-универсалы — устанавливайте хоть вертикально, хоть горизонтально.
Если установите вертикальный бак горизонтально, у него тэн окажется “на воздухе”, нагревательный элемент перегреется и его придется менять. Поэтому, все строго по-заводским установкам, а еще продуманнее — сразу покупайте такой бойлер, который подходит к выбранному месту установки — сэкономите и время, и деньги, и нервы.
Недопустимые способы заземления
Владельцы частных домов нередко нарушают требования безопасного подключения электронагревательного оборудования, используя для заземления следующие недопустимые способы:
- Подсоединение жилы «земля» к водопроводному или отопительному стояку. Даже если трубопровод в какой-то точке своей траектории соприкасается с грунтом, такой способ не гарантирует полноценного заземления. Кроме того, через трубы и приборы отопления фаза беспрепятственно может поразить любого человека, прикоснувшегося к воде или прибору в любой точке дома.
- Переброска заземляющего провода на элементы крепления корпуса к стене. Кронштейн, закрепленный на стене, вообще никак не связан с грунтом. Поэтому решить таким путем проблему не удастся.
- Объединение «нуля» и «земли» в розетке. Это достаточно опасный способ заземления бойлера – так как в случае обрыва нулевой подачи или переключения в электрощитке произойдет переброс фазы на корпуса всех, подключенных к сети приборов.

Для каждого заземляемого прибора должен быть свой контакт на шине Источник biysk-tv.ru
- Последовательное заземление нескольких приборов. Если хотя бы один из участников цепи выйдет из строя, под опасным напряжением окажутся все, подключенное оборудование.
- Одновременное подключение нескольких жил на одну клемму. Для каждого заземляемого устройства должен быть индивидуальный контакт.
Опасный вариант защиты
Некоторые горе-электрики решают сделать заземление в квартире, просто соединив третий провод с системой водопровода либо отопления, проходящей по комнате. Ни в коем случае не используйте такой вариант заземляющего контура, т.к. в этом случае картина следующая:
- происходит пробой тока на корпус электроприбора (бойлера либо стиральной машины в ванной комнате);
- опасный ток переходит на батареи и стояки горячей/холодной воды не только Вашей квартиры, но и всех соседей, т.к. система единая.
- жертвой может стать любой, кто в данный момент решит попить воды из-под крана либо просто дотронуться до металлических труб.
Кстати, правилами ПУЭ этот момент оговаривается и также строго запрещается, согласно ПУЭ 1.7.110 (см. Главу 1.7).
Помимо такого способа заземления квартиры, небезопасными считаются и следующие:
- Соединение в розетке нуля с заземляющим проводником (так называемое зануление). Если вдруг произойдет обрыв нулевого провода в сети, опасное напряжение перейдет на корпус всех электроприборов, подсоединенных к заземлению квартиры – компьютера, водонагревателя, холодильника и т.д.
- Последовательное заземление электроприборов (друг через друга). Если Вы решите сделать такой заземляющий контур, знайте – при возникновении аварии может произойти электромагнитная несовместимость. В результате электроустановки будут создавать помехи и возникнет высокая вероятность того, что заземляющий контур не предотвратит поражение электрическим током.
- Подключение к одной клемме шины PE нескольких проводов. На каждую контактную площадку допускается подсоединять по одному проводнику. Пренебрегать этим правилом категорически запрещается.
Рассмотрение вопроса специалистом
Вот и все, что Вы должны знать о том, как сделать заземление в квартире, если его нет. Мы все же настоятельно рекомендуем использовать УЗО, как временный вариант защиты, ну и настаивать на том, чтобы городские власти позаботились о модернизации электропроводки в Вашем доме.
Похожие материалы:
- В ванной бьет током – что делать
- Как подключить реле контроля напряжения
- Правильное заземление в частном доме
Как заземлить водонагреватель в квартире?
Заземление водонагревательных приборов нужно не только для обеспечения безопасности жизни и здоровья ваших близких, но и для того, чтобы устройство прослужило как можно дольше. При отсутствии заземления велика вероятность того, что произойдет замыкание фазы и утечка тока, к тому же стоит помнить, что вода, проходящая через нагревательный элемент, содержит в себе электрические заряды. (См. также: Как установить водонагреватель своими руками)
А если подключить водонагреватель к металлическим или металлопластиковым трубам, то он будет аккумулировать в себе блуждающие токи вкупе с зарядами. Такой процесс способен вызвать преждевременную коррозию стенок нагревательного устройства и вывод его из рабочего состояния.
Заземление водонагревателя в квартире происходит следующим образом:
Осмотрите корпус водонагревателя — практически каждое подобное устройство, работающее за счет электричества, имеет комплект для подключения заземляющей системы. Он включает в себя не только вилку, но гайку и шпильку с шайбами.
Проверьте электрическую сеть, ведущую от распределительного щита, расположенного на этаже, на предмет присоединения всех металлических деталей к системе заземления.
(См. также: Как выбрать электрический водонагреватель)
Установите розетку с заземляющим элементом на расстоянии не менее 50 см от будущего месторасположения водонагревателя. При этом учитывайте, что она должна находиться над уровнем пола не ниже, чем на 80 см.

Проложите трехжильный кабель от распределительного щита до розетки. Жилы в проводе могут быть медными, рекомендуемое сечение – 1,5 мм. Если есть возможность – делайте скрытую прокладку кабеля, предварительно проштробив пол и/или стены. Однако, вполне допустимо протянуть его, заключив в специальный пластиковый желоб.
После того, как кабель будет протянут, расщепите на обоих концах жилы для того, чтобы присоединить их к клеммам распределителя и розетки.
(См. также: Какие водонагреватели самые надежные)
Теперь можно начинать процесс подключения розетки. Проводники кабеля различаются по цвету, поэтому будьте внимательны.
Обесточьте квартиру и подсоедините провода к розетке, соблюдая цветность.
Подключите проводники к распределительному щитку. Когда будете крепить заземляющий провод, используйте специальный болт.
После того, как все провода будут закреплены, включите распределительную автоматику и проверьте розетку индикатором на наличие напряжения в ней.
(См. также: Подключение накопительного водонагревателя своими руками)
Если же водонагреватель имеет отдельную систему заземления, то подключите провод непосредственно к специальному зажиму на его корпусе.
Способы и принципы заземления
Существует два различных способа защиты от поражения электрическим током – защитные заземления и зануление. По незнанию авторы часто их называют одним словом заземление.
В чем различие? В случае «настоящего» заземления металлический корпус электроприбора соединяется отдельным проводником со специальным контуром. Как его изготовить в частном доме или на даче расскажем ниже.
Структурные схемы подключения заземления и зануления
В этом случае попавшее на прибор рабочее напряжение отводится по пути: корпус электроустановки – проводник – шина заземления – земля. Сопротивление такого контура согласно правилам устройства электроустановок не должно превышать 4 ОМ, что намного меньше сопротивления кожи человека. Таким образом, весь ток уйдёт в землю. Если значения силы тока велики, то сработает автомат защиты – электропитание электроустановки потребителя (так правильно называют электроприборы) будет отключено.
В случае зануления в розетке присутствует дополнительный провод (окрашен в жёлто-зелёный цвет) и называется РЕ-проводником. Провод зануления в нагревателе подключен к опасным частям электроприбора, которые могут стать источником утечки тока. При нарушении целостности нагревательного элемента, попадания фазы на корпус ток потечет по пути: фазный провод – корпус прибора (нагреватель) – защитный провод зануления – распределительный щиток квартиры. При превышении номинального тока сработает устройство защиты.
Выбор типа заземления любого вида водонагревателей в квартире зависит от организованной схемы электропитания жилого дома.
Способы
Все методы заземления делятся на две категории:
- Защитное. Это способ, при котором бойлер прикрепляют к контуру отдельным проводником. Когда напряжение попадает на водонагреватель, оно отводится в определенном порядке. Напряжение поступает к корпусу электроустановку, затем к проводнику, шине заземления и земле. Согласно рекомендациям электропроводок, сопротивление в этом случае не должно превышать 4 ОМ. Поскольку сопротивление кожи людей больше, ток направляется в землю. При повышении силы тока активируется защитный автомат. Электроприбор выключится самостоятельно.
- Зануление. Розетка снабжена дополнительным проводом. Обычно его окрашивают в желто-зеленый оттенок. Он называется PE-проводником. Деталь подключают к наиболее опасным участкам бойлера. Если нагревательный элемент сломается, ток отправится по следующему пути: фазный провод, корпус устройства, провод защиты, распределительный щиток. Если сила тока станет выше нормы, сработает защита.
В многоквартирном доме
В домах, построенных до 1998 года, приборы заземляют по одному стандарту. Тогда действовал норматив для всей страны. Электроприборы заземляли по схеме TN-C. Ее особенность в глухозаземленной нейтрали.
В современных домах питание проводят с помощью пятижильного кабеля. В нем есть разделение рабочего и защитного нулевого проводов. Провести заземление в квартире можно по схеме, обозначенной на картинке.
В частном доме
Заземлять водонагреватель в частном доме нужно так:
- Вырыть траншею равносторонним треугольником. Стороны должны быть не более 2, 5 метров в ширину. Дополнительно сделать углубление для шины.
- Вбить штыри по углам. Нужно оставить 10-12 см. над траншеей.
- Соединить штыри между собой, зарыть траншею.
- Приварить болты к полосе, предназначенной для стены. К ним будет подключен бойлер.
- Соединить клемму заземления с медным проводом.
На даче
Для дачи лучше выбирать компактный водонагреватель. Но помимо габаритов необходимо учитывать объем, мощность и способ подключения. Также нужно подумать над типом бойлера. Стоит отдать предпочтение накопительным, а не проточным. Первые легче заземлить на даче.
Медный провод подключают к электроприбору с одной стороны. С другой подсоединяют к щитку. В конце на болты припаивается контакт.
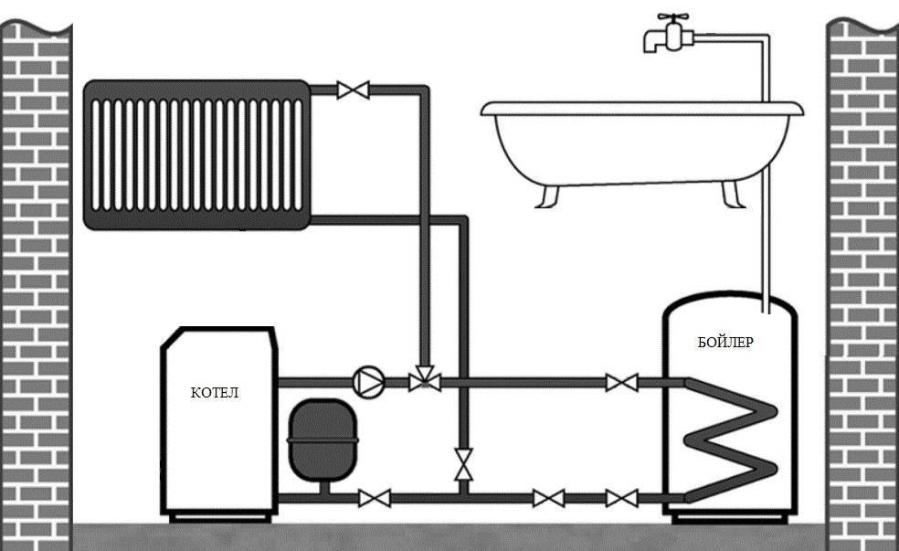
Монтаж накопительного нагревателя

Установка электрического бойлера
В случае с накопительными нагревателями временная установка не предусматривается. Вы, конечно же, можете подключить к выходу теплой воды обыкновенный шланг с лейкой, однако пользоваться подобным агрегатом будет категорически неудобно.

Схема подключения водонагревателя
Первый шаг. Выберите подходящее место для установки водонагревателя и проверьте стену.
Проточные модели имеют довольно малый вес. Накопительные же будут оказывать на стену гораздо более существенную нагрузку
Поэтому при выборе места для установки нагревателя нужно обращать внимание не только на степень удобства подводки труб, но и на прочность поверхности

Как установить накопительный водонагреватель
Как правило, нагреватели объемом до 200 л крепятся к стене. Баки большего объема предполагают исключительно напольную установку. Если нагреватель имеет объем свыше 50 л, его рекомендуется крепить исключительно к несущей стене.
Второй шаг. Подготовьте все необходимые приспособления для установки водонагревателя.

Материалы, которые Вам понадобятся
Вам понадобится:
- перфоратор (если стена бетонная) либо ударная электродрель (если стена кирпичная);
- маркер;
- рулетка для измерений;
- сверло для кафеля (если поверхность в месте будущего крепления нагревателя отделана плиткой);
- защитный клапан;
- лента ФУМ;
- дюбеля и крепежные крюки;
- строительный уровень.
При наличии требуемой разводки с предварительно смонтированными тройниками и запорной арматурой установка накопительного нагревателя выполняется в предельно простой последовательности.

Как установить бойлер
Первый шаг. Отступите примерно 150-200 мм от поверхности потолка и оставьте на стене метки для будущих отверстий. Благодаря такому зазору вы сможете удобно приподнимать водонагреватель для навешивания и снятия бака.
Второй шаг. Вооружившись дрелью (перфоратором) с подходящим сверлом сделайте в стене отверстия глубиной, соответствующей длине монтажных крюков.
Третий шаг. Забейте в подготовленные отверстия дюбеля, а затем вкрутите в них винты. Обязательно оставьте зазор для размещения крепежной планки водонагревателя.
Четвертый шаг. Установите бак на крепления.
Пятый шаг. Установите защитный клапан на вход холодной жидкости. С его помощью из системы будет удаляться чрезмерное давление. Трубку для слива лишней жидкости подключите к трубе канализации. Также эту трубку можно аккуратно ввести в бачок унитаза.
Шестой шаг. Подсоедините трубу холодной воды к входу водонагревателя. Вход маркируется синим. Подключение выполняйте исключительно через защитный клапан. На выход (маркируется красным) подсоедините трубу вывода готовой горячей жидкости.

Установка водонагревателя
Типовая схема установки накопительного водонагревателя
Еще раз обратите внимание на важность предохранительного клапана. Без наличия такого приспособления бак может серьезно повредиться либо даже разорваться по причине чрезмерного повышения давления в процессе приготовления горячей воды

Схема подключения бойлера к сети своими руками
При наличии же защитного клапана лишнее давление будет попросту стравлено и устройство продолжит работать в нормальных условиях. Также с помощью предохранительного клапана вы сможете быстро и удобно сливать из нагревателя воду при необходимости выполнения работ по обслуживанию и ремонту оборудования.
Таким образом, установка водонагревателя не отличается особой сложностью. При желании вы можете самостоятельно выполнить установку и подключение накопительной модели либо проточного нагревателя. Достаточно лишь следовать положениям представленного руководства и все обязательно получится.

Схема газового водонагревателя
Удачной работы!
Нужно ли заземлять проточный водонагреватель?
Главная роль заземления (проводника, соединяющего электроводонагреватель с землей) заключается в том, чтобы обеспечить безопасность жителей, использующих электроприбор. Защитная функция призвана исключить поражение людей электрическим током при прикосновении к металлическим поверхностям, которые оказались под напряжением. Странно, что этот довольно широко известный факт часто игнорируется. Оголенных проводов боятся все, а незаземленные предметы считаются чуть ли не нормой. С точки зрения безопасности пользователей электроприбора, ответ на вопрос о том, надо ли заземлять водонагреватель, утвердительный.
Надо ли говорить, что если не заземлять водонагреватель, срок его эксплуатации может существенно снизиться. В большинстве случаев бак нагревателя производится из нержавеющей стали. Это отличный долговечный материал, который, однако, подвержен негативному воздействию блуждающих токов, образующихся в электронагревателе без подключения к земле. Токи проходят через тонкую нержавейку и оставляют в ней микропоры. Нужно ли объяснять, что если не заземлять водонагреватель, постепенно поры увеличатся и приведут к потере герметичности. Независимо от того, где бак стоит (в квартире или на даче) и как часто используется, срок его службы значительно сократится.
Таким образом, узнав, как правильно и безопасно заземлить водонагреватель, можно получить некий «громоотвод» для вредоносных микроразрядов блуждающих токов, образующихся в процессе работы данного оборудования.
Инструкция заземления
Так как не во всех частных домах или дачах сделан защитный заземляющий контур, то для того, чтобы правильно заземлить бойлер, следует сделать монтаж контура. При желании такую работу можно сделать самостоятельно. Для этого нужно взять готовую схему установки системы, которая будет лучше подходить в определенных условиях. Самые распространенные схемы – треугольник и квадрат. Такими фигурами называют схему с соответствующим количеством электродом и их размещением. Например, устанавливая защитный заземляющий контур по схеме треугольника, необходимо приготовить три длинных стальных электрода. Каждый из них должен быть не короче 2 м, 15 мм в сечении. Можно использовать медь, но такой материал очень дорогой.
На расстоянии 4-5 метров от распределительного щитка нужно начертить равносторонний треугольник (1,2-1,5 м сторона). Затем необходимо вырыть небольшое углубление и в местах вершин условного треугольника нужно забить стальные электроды на глубину 1,8 м. Потом нужно эти электроды нужно соединить в верней части при помощи сварки. Для этого берутся стальные шины с толщиной в 4мм, а их длина должна быть немного больше стороны размеченного треугольника. После этого подключается к конструкции заземляющий проводник из однородного металла и прокладывается к распределительному щитку дома. Закрепив его надежно к заземляющей установке, можно закапывать траншею.

Схема устройства электрического водонагревателя
Заземлить бойлер можно будет только после проверки защитного контура при помощи специальных приборов. Также при желании можно приобрести готовый комплект для заземления с соответствующими стандартами. Когда установка конструкции будет завершена, можно перейти к следующему основному этапу работы.
В квартире или же частном доме должен быть проложен трехжильный кабель с проводом для заземления. Он может иметь зеленый, желтый или желто-зеленый цвет. Такая цветовая маркировка не позволит вам спутать провода с другим назначением. Если в доме или квартире проложен двухжильный кабель без заземляющего провода, следует сменить старую проводку.
Большинство современных бойлеров имеют специальную клемму, которую подключают к заземляющему контакту на розетке. На вилке бойлера также может быть особый контакт, и если ее подсоединить к электрической сети, тогда он будет подключен к заземляющему контуру. Наличие клеммы упрощает процесс работы. Затем необходимо сделать проверку электрической сети, отходящей от распределительного щитка на этаже (улице в частном доме).

Правильное подключение бойлера с накопителем в ванной
Обязательно в стене должна быть вмонтирована особая розетка нового образца, которая имеет защемляющий элемент. Она должна располагаться от места размещения бойлера на расстоянии более полуметра, и на высоте более 80 сантиметров от уровня пола. Проложенный трехжильный кабель нужно расщепить на отдельные провода, чтобы подсоединить их к клеммам на розетке и распределительном щитке или трансформаторе.
Работа должна проходить с обесточенной электрической сетью
Очень важно соблюдать правила техники безопасности. Обесточив помещение можно сделать подключение проводников кабеля к соответствующим точкам в розетке и распределительном щитке. Необходимо определить назначения каждой жилы, чтобы все получилось правильно. Когда все соединения были закреплены, нужно включить электроснабжение, сделать проверку наличия напряжения в сети при помощи отвертки-пробника. Если у определенной модели водонагревателей имеется готовая встроенная система для заземления, тогда нужно подключить провод «земли» напрямую к специальному зажиму на корпусе устройства
Когда все соединения были закреплены, нужно включить электроснабжение, сделать проверку наличия напряжения в сети при помощи отвертки-пробника. Если у определенной модели водонагревателей имеется готовая встроенная система для заземления, тогда нужно подключить провод «земли» напрямую к специальному зажиму на корпусе устройства
Сбор контура
Разрезаем уголок на шесть полосок по три метра. Одну сторону трех из них срезаем под острым углом болгаркой, в дальнейшем будет намного легче их забивать в землю. Вырываем в земле канаву треугольной формы, с длиной стороны чуть больше трех метров и глубиной 30-50 см. В углы полученного треугольника остриями вниз устанавливаем профиля и помощью кувалды забиваем их практически на всю длину, оставив сантиметров 10 сверху.
Свариваем вбитые уголки между собой тремя оставшимися. По сути, на этом контур готов. По форме он напоминает стул с тремя ножками, закопанными в землю, как на фото. Теперь следует подключиться к щитку.
Делаем своими руками канаву от ближайшего угла контура к месту в доме, где расположен щиток. Просверливаем в цоколе дома сквозное отверстие. Проволока приваривается одной стороной к углу контура и по канаве через сделанное в цоколе отверстие заводится в дом.
Это нельзя делать с помощью провода, так как он со временем сгниет.

К концу проволоки, который находится в доме, приваривается шляпкой вниз шуруп. После этого закапываем контур и проволоку. Хорошо, если вы устанавливаете его в мягкую землю или глину, они хорошо проводят ток за счет высокого содержания солей. Если контур устанавливается в песок, место монтажа нужно полить солевым раствором.
Стоит ли делать заземление водонагревателя в квартире или в доме
Жидкость из водопровода — отличный проводник, постоянно находящийся в соприкосновении с нагревателем бытового прибора независимо от типа (проточный либо накопительный). При отгорании проводов, разрушении корпуса нагревательного элемента контакта воды с электричеством избежать не удастся. Соприкосновение с металлическим корпусом бойлера или контакт со струёй воды из неисправного прибора неизбежно сопровождается электрическим ударом. Из-за того что из ванной или душа быстро выбраться невозможно — воздействие тока становится смертельным. Одним из действенных способов уменьшить отрицательное воздействие (в совокупности с установкой средств защиты) является заземление водонагревателя.
Как заземлить водонагреватель в квартире?
Следует знать, что последовательность заземления бойлера в квартире может быть различной, все зависит от того, есть ли заземление или оно отсутствует.

Если заземление в квартире есть, то для того чтобы заземлить водонагреватель, достаточно действовать в таком порядке:
Обязательно, перед тем как подключить водонагреватель к заземлению, следует обесточить всю квартиру, а также придерживаться во время этого процесса, основных правил работы с электричеством. Если заземления в квартире нет, а бойлер бьётся током, то для того чтобы его заземлить, следует действовать несколько другим образом.




































